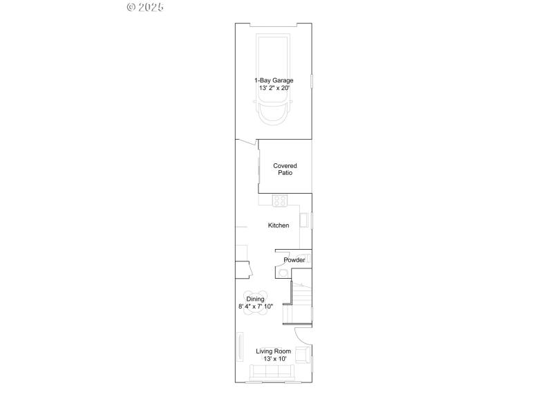
This new construction home is located in Reed's Crossing, a vibrant community minutes from major employers with more than 36 acres of open spaces connected by paths, a Town Center featuring shopping and dining, and access to highly rated schools. The Arlo plan features a versatile two-story design with an open-concept first floor that blends the kitchen, living room and dining area for effortless flow. The second floor is home to three bedrooms, including the spacious primary suite with a private bath and walk-in closet, while a rear single-bay garage adds convenience. Interior highlights include quartz countertops, Shaker-style cabinets, LVP flooring in the kitchen and entry, LVT in the baths, and two-tone interior paint. This home also includes central air conditioning, a refrigerator, washer and dryer, and blinds—all at no extra cost! Located on homesite 1632, this home is expected to be complete in winter 2026. Rendering is artist conception only. Photos are of a similar home, features and finishes will vary. [Home Energy Score = 10. HES Report at https://rpt.greenbuildingregistry.com/hes/OR10234494]
Blanton to right on 83rd to left on Quincy. Model home on the left
Dwelling Type: Residential
Subdivision: N/A
Year Built: 2026, County: US
Blanton to right on 83rd to left on Quincy. Model home on the left
Listing is courtesy of Lennar Sales Corp