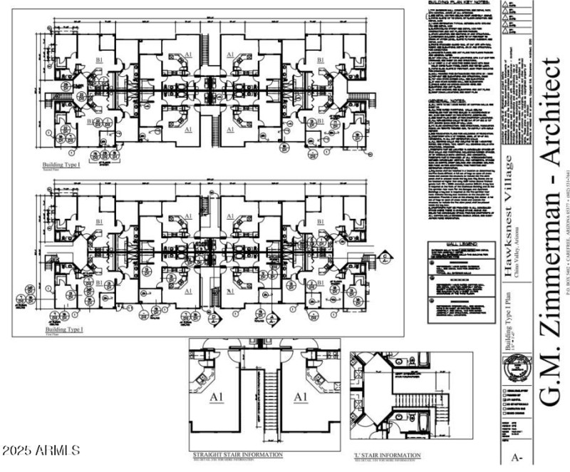
CHINO VALLEY NEEDS AFFORDABLE HOUSING!!! A+ Apartment builder opportunity in the heart of the Chino Valley core. Property is approved, and has all design work done for a 248 unit apartment complex with clubhouse. Civil plans are approved, including sewer, water, paving, grading and site plan. All architecture, including all structural engineering is complete and awaiting approval from the Town. THIS PROJECT IS SHOVEL READY UPON CLOSING. Plat has been recorded.
From Prescott, North on Highway 89 to Road 2 North, west on 2 North approximately 1,000 feet, property is on north side of Road 2 North.
Dwelling Type: Land
Subdivision: N/A
Year Built: N/A, County: N/A
From Prescott, North on Highway 89 to Road 2 North, west on 2 North approximately 1,000 feet, property is on north side of Road 2 North.
Listing is courtesy of Tri-City Land Company
Sign in to your account to continue