Here at Senderos you can live, work, & play! We offer a unique new way of living. Enjoy the latest in living with modern open kitchens, in-unit washers & dryers, and attached garages. You'll find designer vinyl plank flooring, smart home technology, wall USB ports, and large closets throughout our interior. Our spacious homes are perfect for those who work from home! Residents will enjoy a brand-new pool, spa, fitness center with Wellbeats Fitness on-demand system, gas BBQ grills, dog bathing stations, and a bike repair station for those who like to cruise the trails at South Mountain. Senderos at South Mountain is located at the base of South Mountain Park, providing breathtaking views and perfect access to hiking & biking trails. Ponderosa Stables for horseback is across the street.
South on Central to Property
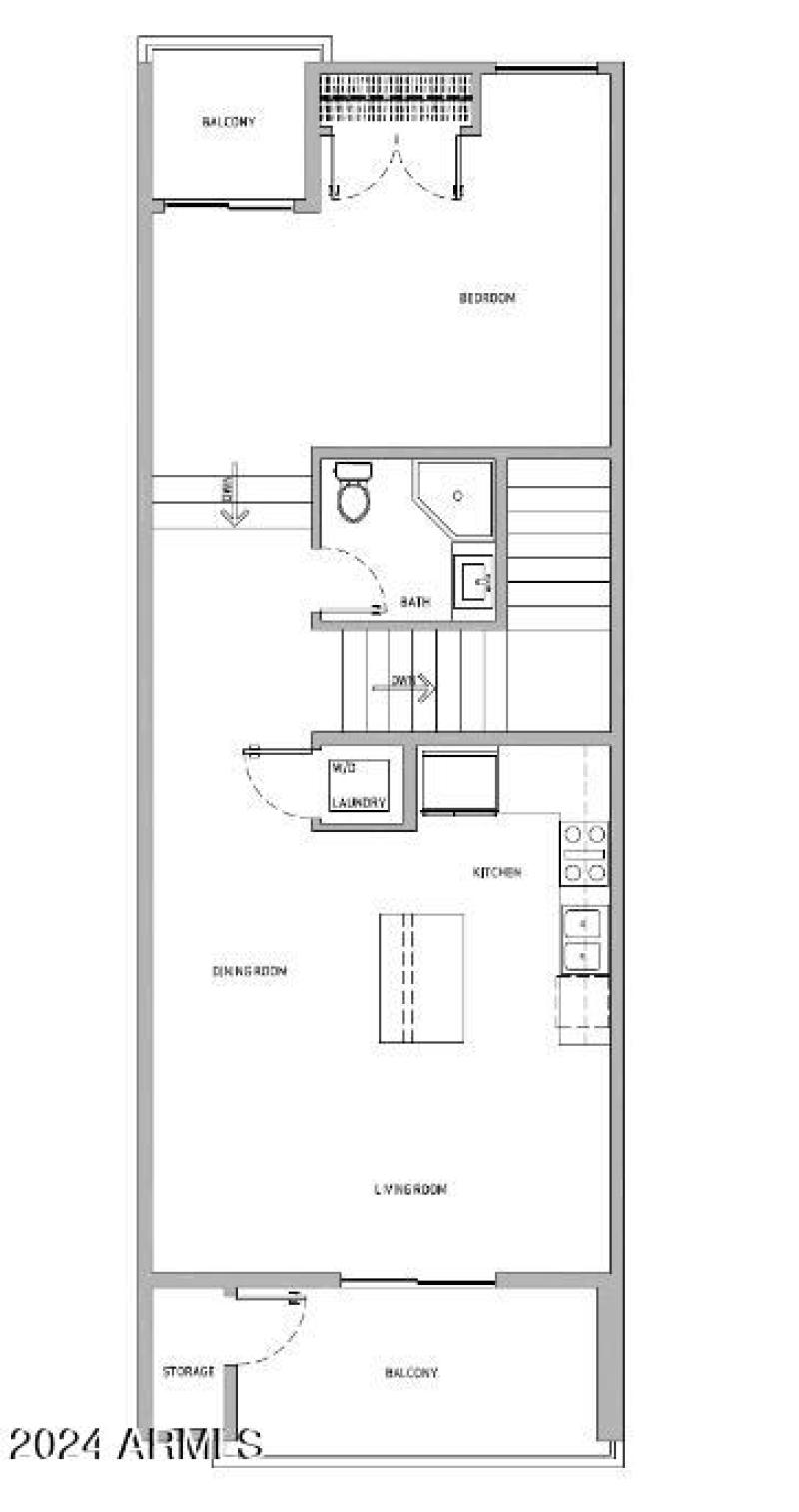
Dwelling Type: Residential Lease
Subdivision: SENDEROS AT SOUTH MOUNTAIN
Year Built: 2019, County: N/A
South on Central to Property
Listing is courtesy of Apartment & Home Solutions
Sign in to your account to continue