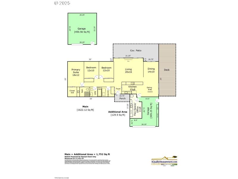
You will love all that this one level, 3 bedroom/2 bath, mid century home has to offer. Come see an inviting floor plan, huge shop, covered RV parking and more. Practical updates have been made, while preserving the endearing mid century characteristics, including hardwood floors in the bedrooms, classic buff brick fireplace, and playful pink bathroom fixtures. Some updates include a brand new roof, interior and exterior paint, and new flooring. A primary bedroom with private bath and walk-in closet; vaulted ceilings in the living room; and a versatile living space are just some of the features you will love. At almost 1/3 of an acre, the large fenced yard has plenty of room for play, gardening, BBQ, and outdoor gatherings under the covered patio. A 22’ x 20’ shop with electricity; and a 26’ x 12’ metal carport to protect your RV, vehicles and “toys” gives you versatility and options. Convenient access to Hwy 26, Intel, Downtown Hillsboro, Hare Field and so much more. Schedule a tour today! You don't want to miss this one!https://rpt.greenbuildingregistry.com/hes/OR10242676 [Home Energy Score = 3. HES Report at https://rpt.greenbuildingregistry.com/hes/OR10242676]
Cornell Road to Arrington Road
Dwelling Type: Residential
Subdivision: N/A
Year Built: 1963, County: US
Cornell Road to Arrington Road
Listing is courtesy of All Professionals Real Estate