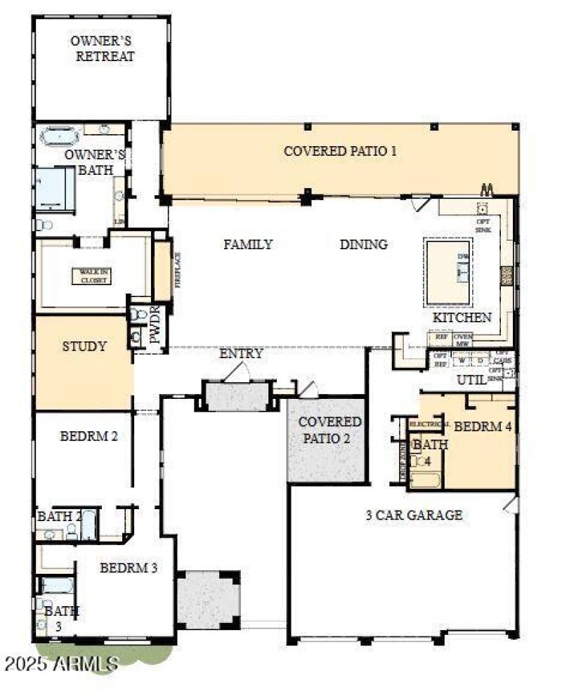
Gated NEW HOME community just north of Tom's Thumb in Scottsdale; 4 ensuite bed, 4.5 bath w/enclosed study and private courtyard, 3 car garage and large covered private back patio; open plan with fireplace in family rm; Wolf appliances w/48'' range top, dbl oven, micro drawer, 30'' Subzero refrigerator & 30'' Subzero freezer; dual zone wine cooler; waterfall kitchen island & upgraded surfaces throughout; upgraded flooring and carpet; 20', 12' and 8' stackable sliding glass doors; huge walkin tiled shower and enormous closet; POOL ADDED; 2x6 construction and extensive new home warranty.
Dwelling Type: Residential
Subdivision: STORYROCK 2A-1
Year Built: 2025, County: N/A
Listing is courtesy of David Weekley Homes