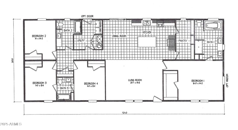
3% Buyer Incentive! Scenic vaguely describes this elevated 2-acre mountain lot with stunning views of the pristine desert and abundance of saguaro cacti. This brand new, extra-wide 30'x72', 4-bedroom, 3-full bath, energy-efficient home features 2160 sq. ft. of luxurious living space with a spacious, open floor plan, 9' ceilings, and a very large, walk-thru pantry with access doors on both sides. Outdoors, enjoy the views from an 18'x80' concrete patio, 4' concrete sidewalk around house, circle driveway, and beautifully landscaped front yard on a timed watering system. There's plenty of room to park your toys or trucks and bring your horses, chickens, etc. Don't let this home go!
Head west on W Clayton Rd, Turn left onto N Amarillo Valley Rd, Turn right onto W Wildwood Rd, Turn left onto S Warren Rd and past Cardinal Rd. Property will be on the right.
Dwelling Type: Residential
Subdivision: Hidden Valley Estates
Year Built: 2025, County: N/A
Head west on W Clayton Rd, Turn left onto N Amarillo Valley Rd, Turn right onto W Wildwood Rd, Turn left onto S Warren Rd and past Cardinal Rd. Property will be on the right.
Listing is courtesy of Schlegel Real Estate