Endless Potential on 1.31 Acres — No HOA!
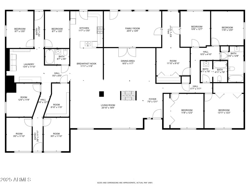
Tucked away on a quiet cul-de-sac, this unique home offers flexibility on a spacious 1.31-acre lot. With 4 bedrooms and 6 additional bonus rooms, it's perfect for multi-gen living, a home business, or creative space to grow.
The split floor plan includes a large laundry room and walk-in pantry, while the private backyard features a paved patio, mature trees, and low-maintenance turf—ideal for relaxing or entertaining.
No HOA, tons of space, and minutes from everything. Come see the possibilities!
Dwelling Type: Residential
Subdivision: Rancho Bueno Vista
Year Built: 1975, County: N/A
Listing is courtesy of Good Oak Real Estate
Sign in to your account to continue