*DISCOVER THIS CHARMING HOME with new plumbing and new roof offers peace of mind for many years *TIMELESS AMBIANCE & APPEAL* MUST SEE !! SOLID BLOCK CUSTOM BUILT -
MAINTAINED & LOVED ! AWESOME VALUE. Features: TWO PRIMARY SUITES-''FOUR FIREPLACES'' Ascend to the private roof deck to SAVOR SWEEPING VIEWS & MOUNTAIN VISTAS. CORNER RESIDENCE VERY ,PRIVATE AND PEACEFUL . HIGHLY DESIRABLE with NO HOA.....
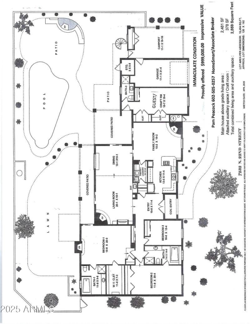
OFFERS BACKYARD POOL AND TRANQUILITY. THE MAIN HOUSE WITH 3 BEDROOMS IS 2481 SF WITH ATTACHED GUEST QUARTERS 378 SF AND GARAGE PLUS AMPLE PARKING SPACES. STUNNING SOUTHWESTERN ELEMENTS- THIS IS ONE OF A KIND-COMFORT AND EASY LIVING!
This HOME is WAITING FOR YOU! PRESTIGIOUS '' Lincoln Drive Estates''+ Excellent School * MAKE AN OFFER- *BRING YOUR VISION TO LIFE
***NORTH ON 22ND STREET FROM LINCOLN DRIVE 1/2 MILE
ON WEST SIDE OF 22ND STREET
Dwelling Type: Residential
Subdivision: LINCOLN DRIVE ESTATES
Year Built: 1975, County: N/A
***NORTH ON 22ND STREET FROM LINCOLN DRIVE 1/2 MILE
ON WEST SIDE OF 22ND STREET
Listing is courtesy of HomeSmart