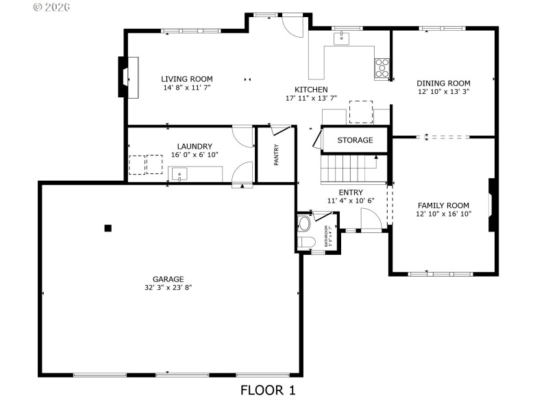
Located in the highly sought-after Orchard Lake neighborhood in Happy Valley, this home sits just four homes from a private neighborhood lake with a paved, well-maintained walking and biking trail. Enjoy territorial views, and easy access to outdoor recreation.Inside, the home features 10 year old presidential roof, new luxury vinyl plank flooring and new carpet throughout, two gas fireplaces, and a spacious, functional layout. The kitchen includes granite countertops, touch-activated faucet, one-year-old refrigerator, and a large walk-in pantry. An extra-large laundry and mudroom provides excellent everyday convenience, along with a large-capacity washer and dryer on a custom pedestal.The 3 car spacious garage would make a great workshop plus a large stand-up attic storage area with lighting. Outside, the fully usable backyard includes a storage shed, raised garden beds, and fruit trees including apple and cherry trees.
Hwy 224 to Orchard View
Dwelling Type: Residential
Subdivision: ORCHARD LAKE
Year Built: 1995, County: US
Hwy 224 to Orchard View
Listing is courtesy of Vandermeer Real Estate
Sign in to your account to continue