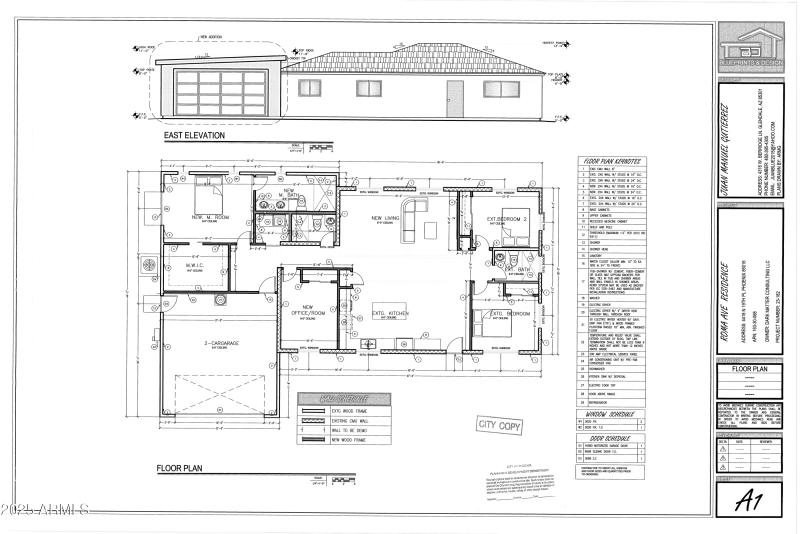
The perfect central Phoenix rebuild on a spacious corner lot, moments from the Camelback Colonade in Biltmore area. Property is currently approved with plans for a 4 bed, 3 bath floor plan with a 2-car garage. City of Phoenix Permits have all been approved, structural engineering was certified by a AZ licensed structural engineer, lot survey was completed and certified by an AZ licensed surveyor, and the approved site plans were professionally drafted and certified by an AZ licensed architect (whom also is a favorite w/the Director at the COP Planning Department, etc.
From Camelback head South on 20th St to Turney. West(Right) on Turney, North(Right) on 19th Place. Property is on the West (Left)side of street at the corner of Roma Ave and 19th Place.
Dwelling Type: Residential
Subdivision: PETERS VIEW TRACT 2
Year Built: 1953, County: N/A
From Camelback head South on 20th St to Turney. West(Right) on Turney, North(Right) on 19th Place. Property is on the West (Left)side of street at the corner of Roma Ave and 19th Place.
Listing is courtesy of Venture REI, LLC