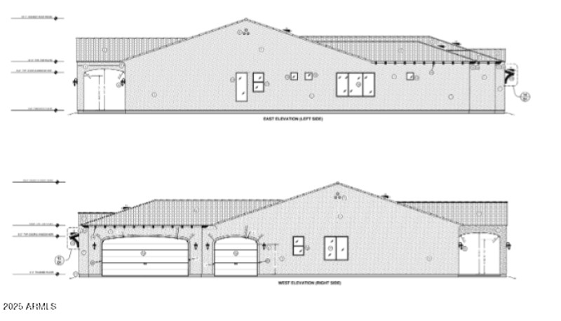
**Multiple elevations available!** This is a to-be-built home, actively being built, on over an acre lot with a 3 car garage, 4 bedrooms, an office space and game room, easily converted into a Separate living space for a wonderful co-living arrangement if desired. This home comes with a block wall, private drive, 2x6 construction and Foam insulation. Appliance package standard as well as potential designer credit if contract signed before finishes are ordered. Expected completion of December 1st, 2025. Preferred Lender is Croft & Co Lending, builder incentives offered to help with rate if preferred lender is used.
Drive north on 163rd Ave from Happy Valley road, turn left on Dale Ln going west bound, property will be located on the left side of the road after 177th Ave. Look for the for sale sign in the vacant lot next to the home being built.
Dwelling Type: Residential
Subdivision: Platinum Acres
Year Built: 2025, County: N/A
Drive north on 163rd Ave from Happy Valley road, turn left on Dale Ln going west bound, property will be located on the left side of the road after 177th Ave. Look for the for sale sign in the vacant lot next to the home being built.
Listing is courtesy of Equity Arizona Real Estate, LLC