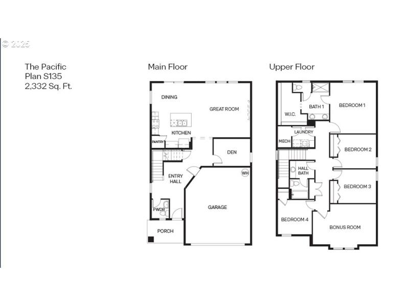
New construction in Salem! The Pacific two-story floor plan has 4 bedrooms plus a bonus room, 2.5 bathrooms, with a den on the main floor that is perfect for guest stays or an at-home office. The open concept living space has beautiful finishes throughout and has designer touches like a fireplace with a floor-to-ceiling painted accent wall. The chef-inspired kitchen has excellent features like stainless-steel appliances, solid surface countertops with full-height tile backsplash, and a gas range/oven. The primary has an amazing spa like feel including a double vanity sink, walk in shower, and a large walk-in closet. Receive a closing cost credit with use of builder’s preferred lender, reach out for more details. Sales office hours 9:30am – 4:30pm daily. East Park Village is located by Interstate 5 offering swift access to explore the Greater Salem area. The community is just minutes away from the state capitol, outstanding local restaurants, and shopping centers like the Willamette Valley Center. Be a part of this wonderful community at East Park Village! Photos are representative of plan only and may vary as built.
Model office: 113 Greencrest Street NE, Salem Or 97301
Dwelling Type: Residential
Subdivision: N/A
Year Built: 2026, County: US
Model office: 113 Greencrest Street NE, Salem Or 97301
Listing is courtesy of D. R. Horton, Inc Portland
Sign in to your account to continue