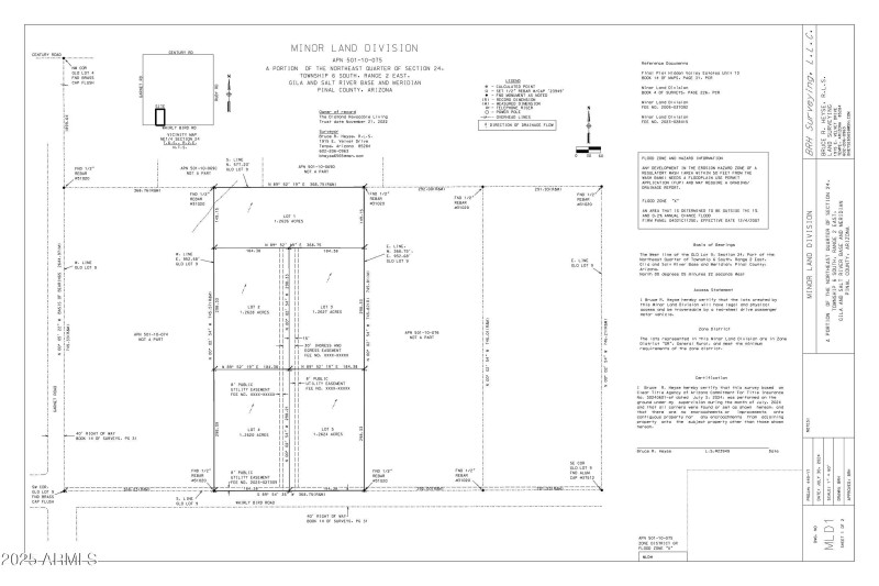
Welcome Home to Beautiful Hidden Valley Estates in Maricopa Arizona! This is Lot 1 of FIVE Available Parcels on paved Whirly Bird Road! A 1.26 acre Equestrian Parcel with Gorgeous Mountain Views & SELLER MAY CARRY! Water is available for hauling with membership to Maricopa Mountain Water Co - ask your agent for details! Come Home to the Wide Open Spaces on this Equestrian Parcel! GR, General Rural, zoning with a 1.25 acre minimum so parcel cannot be split! Fresh Air, Mountain Views, Gorgeous Desert Vegetation, Paved Roads, No City Noise Or Traffic while Close to All Amenities - Pure Bliss! Come Home to Maricopa Today - Come Home to the Country, You'll Fall In Love, Too! *Note: taxes prorated based on original parcel amount for 2024 & MLD may be found in documents & photos tab.
From Maricopa, S on 347, W on Clayton, S on Amarillo Valley, W on Whirly Bird 9/10 mi to parcel on N side. Welcome Home to Beautiful Maricopa!
Dwelling Type: Land
Subdivision: N/A
Year Built: N/A, County: N/A
From Maricopa, S on 347, W on Clayton, S on Amarillo Valley, W on Whirly Bird 9/10 mi to parcel on N side. Welcome Home to Beautiful Maricopa!
Listing is courtesy of Superlative Realty