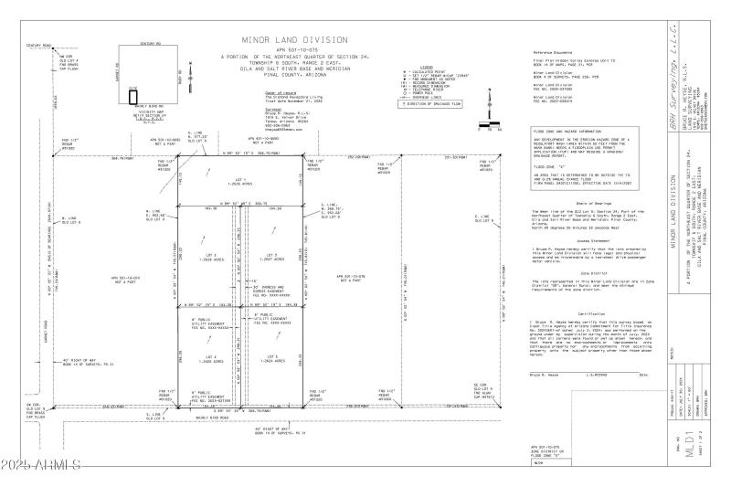
Get ready to state that Hidden Valley Estates in Maricopa, Arizona, is your home! Lot 3 of FIVE incredible parcels on paved Whirly Bird Road is waiting for you! This 1.26-acre equestrian lot features stunning mountain views and the exciting option of seller financing! Join the Maricopa Mountain Water Co. for hauled water—ask your agent for details! Zoned GR (General Rural) with a 1.25-acre minimum, this lot cannot be split but offers wide-open spaces! Enjoy fresh desert air, beautiful native plants, paved roads, and peaceful vibes, all while being close to amenities. Don't wait—make Maricopa your home and start living the country life you love! *Note: 2024 taxes prorated from original parcel; MLD available in documents & photos tab.
From Maricopa, 347 S, W on Clayton, S on Amarillo Valley, W on Whirly Bird 9/10 mi to parcel on N side. Welcome Home to Beautiful Maricopa!
Dwelling Type: Land
Subdivision: N/A
Year Built: N/A, County: N/A
From Maricopa, 347 S, W on Clayton, S on Amarillo Valley, W on Whirly Bird 9/10 mi to parcel on N side. Welcome Home to Beautiful Maricopa!
Listing is courtesy of Superlative Realty