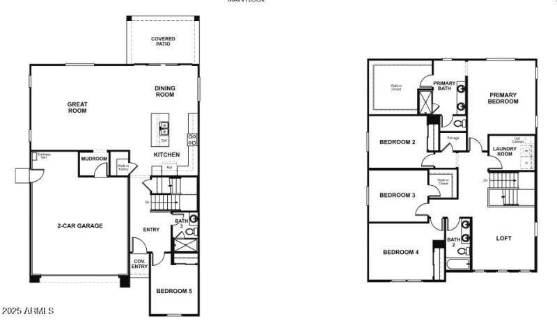
Explore this thoughtfully designed Moonstone floorplan featuring 5 bedrooms and 3 bathrooms. This spacious two-story home offers a loft, with the primary suite and laundry room located upstairs for added convenience. The primary bedroom features a massive walk-in closet. The kitchen includes a gas stove, quartz countertops, stainless steel appliances, 42'' upper cabinets, a tile backsplash, and a walk-in pantry. Additional features include stone tile flooring, a large covered back patio, and ceiling fan prewiring in select rooms. The Ballpark at Avion community offers amazing amenities for just $107/month, including: Resort-style pool, pickleball courts, walking trails, parks and grilling ramadas. The neighborhood is located within walking distance to 2 major league baseball spring training facilities. Residents also enjoy easy access to more than 50 restaurants and lots of shopping within 3 miles.
From Estrella Pkwy, head south. Turn left onto W Elwood St, then right (north) onto 157th Ln. The home will be on the right-hand side, facing north
Dwelling Type: Residential
Subdivision: AVION AT BALLPARK VILLAGE PHASE 2
Year Built: 2025, County: N/A
From Estrella Pkwy, head south. Turn left onto W Elwood St, then right (north) onto 157th Ln. The home will be on the right-hand side, facing north
Listing is courtesy of Richmond American Homes