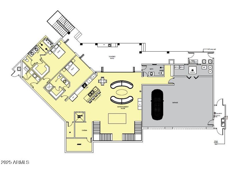
Ready to build, Rare opportunity to own a 1.06-acre hillside, gold course lot with approved bulding plans. HOA has approved plans already and first submital to city is done. Stunning 6,355 sq ft modern home. Seller guarantees permit approval before closing. Enjoy golf course views plus McDowell Mountains to the north and Four Peaks to the east. Home design includes 4 beds, 5.5 baths, lower-level entertainment area with kitchen, wine cellar, and hidden armory, main-level great room, double island kitchen, office, huge master suite, elevator, 3-car garage, pool, spa, BBQ, and more.
Dwelling Type: Land
Subdivision: FIREROCK PARCEL J2
Year Built: N/A, County: N/A
Listing is courtesy of Niksi