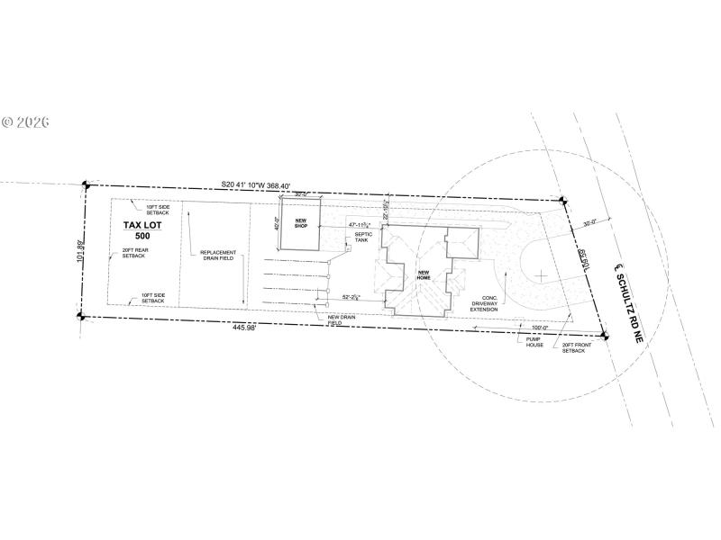
*** AMAZING HIGH END NEW CONSTRUCTION ON ACREAGE *** Frank Lloyd Wright inspired Prairie Ranch with a sprawling 3,136 square feet of ONE LEVEL LIVING! Soaring ceilings in grand foyer and living room, GOURMET KITCHEN with Bosch appliances and butler's pantry, 4 beds PLUS office and 3 baths, attention to detail, fine finishes, a 40x30 shop, and plenty of paved driveway and parking. Located around the corner from Oregon's oldest continuously operating retail establishment, the famous BUTTEVILLE STORE, this IDEAL LOCATION is between Portland and Salem with great I-5 access. This is proposed construction, contact your agent for pictures of homes with examples of similar finishes. Builder open to buyer selecting options and potential customization. Hurry now! This is an amazing deal in an amazing location and won't last!!!
Arndt Rd to north on Schultz to property
Dwelling Type: Residential
Subdivision: N/A
Year Built: 2026, County: US
Arndt Rd to north on Schultz to property
Listing is courtesy of RE/MAX Equity Group
Sign in to your account to continue