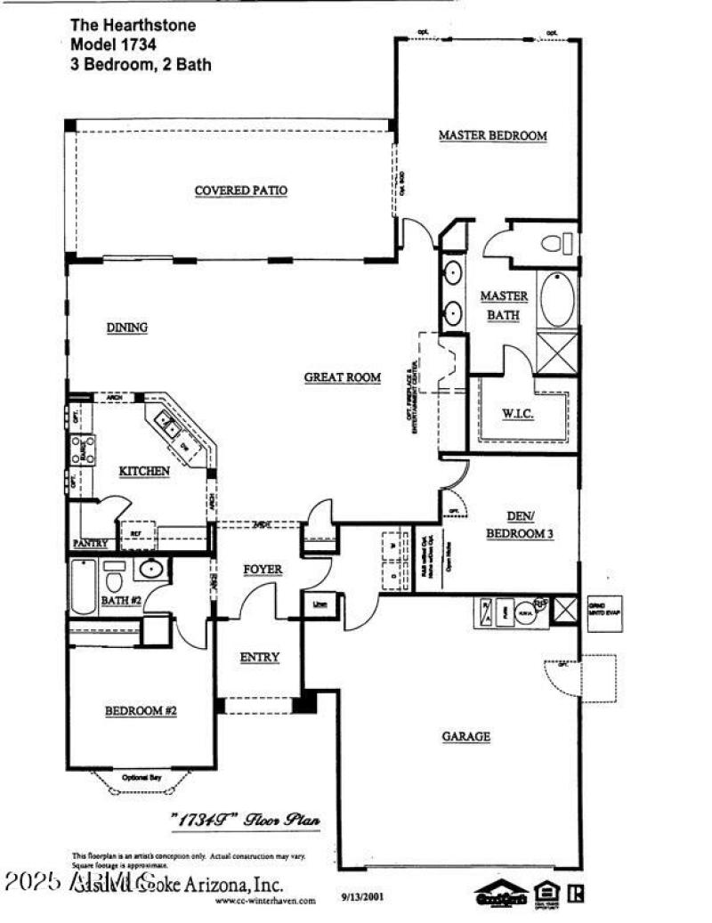
Take a look at this wonderful home in Winterhaven that is in the age restricted, gated community that offers 2 clubhouses and pools. This home has had many upgrades to include stainless appliances and granite counters in the kitchen, upgraded primary bedroom with new lighting fixtures along with a large walk in shower and additional storage closet. There's a bedroom with built in desk for a perfect office. The owner had the bonus room off the living area finished and is included in living space that makes a perfect game room or gathering space when family visits. You'll also find a 2 car garage and separate laundry space. The owner also had a new HVAC installed 5 yrs ago and carries an additional 5 yr warranty. The back yard is a great place to spend time and enjoy the mountain Views.
From St. Andrews turn onto Winterhaven Drive turn left onto Softwind Court to house in the cut-da-sac.
Dwelling Type: Residential
Subdivision: WINTERHAVEN COUNTRY CLUB ESTATES PHASE 1A
Year Built: 1998, County: N/A
From St. Andrews turn onto Winterhaven Drive turn left onto Softwind Court to house in the cut-da-sac.
Listing is courtesy of ERA Four Feathers Realty
Sign in to your account to continue