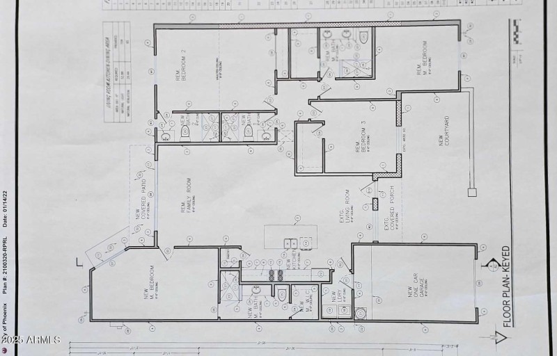
What at great location! Prime Biltmore neighborhood. Walk to work, shopping and dining! AMC theater and Lifetime gym. Close to schools! Beautiful landscaped back yard with POOL! New appliances and heat pump. Three bedrooms and two baths! Great place to live! Plans and blueprints for major renovation and expansion have been completed. See in photos! City permit has been issued! What a great home with even more possabilites! This is in the Cavalier Campus. This home is surrounded by beautiful renovated homes! See this one today!!
Camelback south on 24th street. Left to Pierson. 2623 on right.
Dwelling Type: Residential
Subdivision: CAVALIER CAMPUS 3
Year Built: 1956, County: N/A
Camelback south on 24th street. Left to Pierson. 2623 on right.
Listing is courtesy of RE/MAX Excalibur