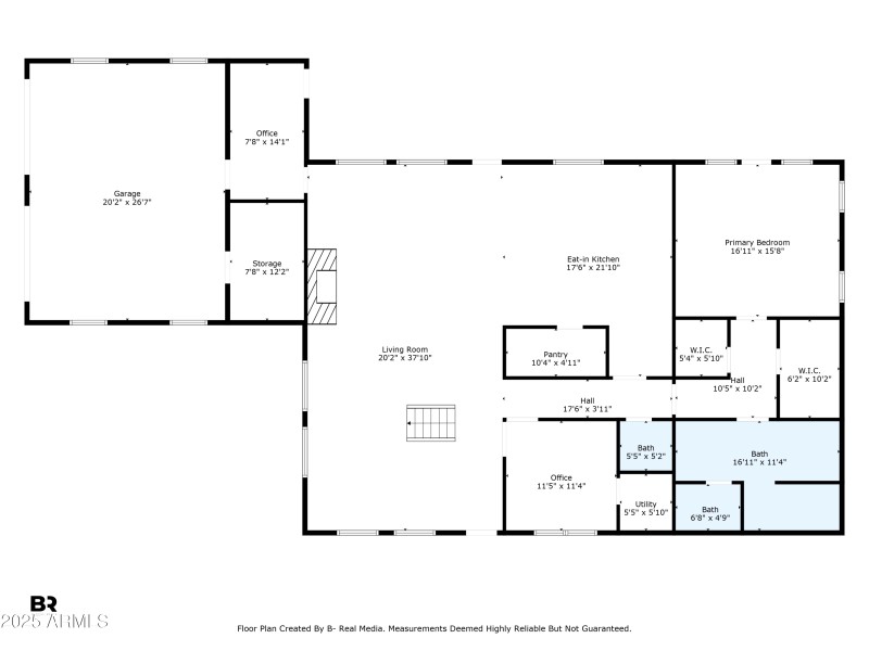
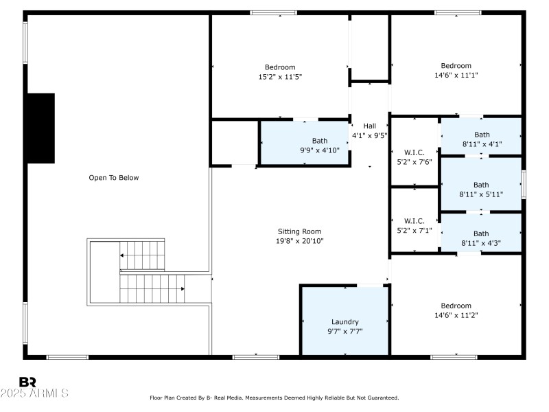
NO HOA, guest quarters, shop, and horse setup. 6-bed setup: 4 beds in main home + 2 more in detached 1200 SF air-conditioned shop w/ full bath - ideal for guest quarters or home business. Flood irrigation on 1.25-acre lot, fully fenced pasture, 4-stall shed-row barn, round pen, & pipe/no-climb fencing. Two laundry rooms, all appliances convey. Kitchen features 6-burner propane stove, copper farm sink, granite counters, walk-in pantry, & Knotty Alder cabs. Great room w/ 20' ceilings, 42' metal/stone FP (gas or wood), & 8' windmill ceiling fan. Interior includes 8' doors, hardwood barn doors, custom metal staircase. Detached garage/shop has 30-amp plug, foam insulation, WiFi mini-split, metal R-panel roof, & 400 amp service w/ 200 amp sub panel. Gas T-off for spa or outdoor kitchen. Country quiet, minutes to town, views of Superstition Mountain.
Dwelling Type: Residential
Subdivision: S34 T2S R8E
Year Built: 2020, County: N/A
Listing is courtesy of HomeSmart Lifestyles
Sign in to your account to continue