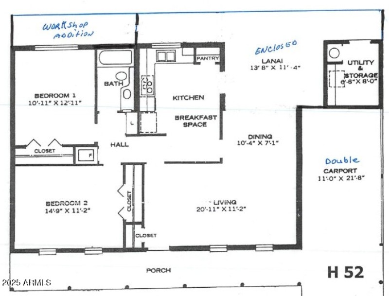
Welcome to this beautifully refreshed single-story home nestled in a vibrant adult community! Offering 2 bedrooms and 1 updated bathroom across 1,149 square feet, this charming abode blends comfort, style, and efficiency. Step inside to discover an extensive remodel including updated flooring throughout and fresh interior and exterior paint that gives the space a clean, modern feel. The bright, white kitchen features abundant cabinetry, Quartz countertops, stainless-steel appliances, and updated lighting—perfect for everyday living and entertaining. The home also includes a dedicated laundry room and updated fans. Enjoy the benefits of energy efficiency with a tankless water heater and solar system already in place. Entertain in the enclosed lanai, relax under the covered patio... or take advantage of a flat backyard ideal for gardening or outdoor gatherings. A 2-car covered carport provides convenient parking and shade. This low-maintenance home is ready for you to move in and start enjoying everything this active 55+ community has to offer!
South on 103rd Ave to Ironwood, head east to 102nd Dr, go north to Cinnebar, then east on Cinnebar to home.
Dwelling Type: Residential
Subdivision: SUN CITY UNIT 6D
Year Built: 1968, County: N/A
South on 103rd Ave to Ironwood, head east to 102nd Dr, go north to Cinnebar, then east on Cinnebar to home.
Listing is courtesy of Homelogic Real Estate
Sign in to your account to continue