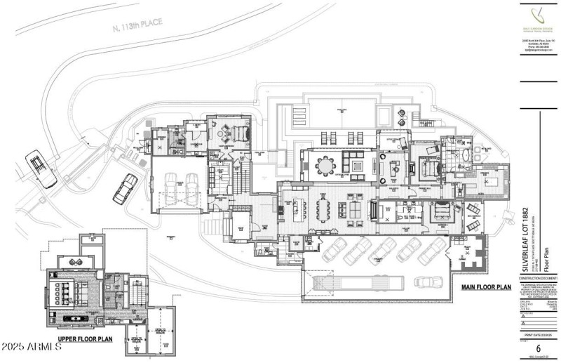
Do you have clients that want new construction in Upper Canyon at Silverleaf but don't want to go through the time, energy, & $$ it takes to go through the approval process? Well you are in luck as the best opportunity remaining in the Summit is available and all of the heavy lifting has been done for you. Pull a permit and start construction tomorrow on this full prepped and pad ready lot with custom Dale Gardon plans for a 6800sf+ home w/2 bedroom suites, an office, large casita, 784sf main garage & an RV Garage! 5517sf is on main level with no steps & upper level is home theater w/bath & w-in closet or could easily be a 4th en suite bedroom. Lot has great views and is surrounded by $15-$30 million homes & it cuts 2 years off of the design process.
North on TP to Windgate Pass. East on Windgate through guard gate to Saguaro Canyon Tl. Left on Saguaro Canyon to Whistling Win. Right on WW to Wingspan & then right to 113th pl. Lot is on left or south side of 113th pl.
Dwelling Type: Land
Subdivision: DC RANCH PARCEL 6.8 LOT 1882A MLD
Year Built: N/A, County: N/A
North on TP to Windgate Pass. East on Windgate through guard gate to Saguaro Canyon Tl. Left on Saguaro Canyon to Whistling Win. Right on WW to Wingspan & then right to 113th pl. Lot is on left or south side of 113th pl.
Listing is courtesy of eXp Realty
Sign in to your account to continue