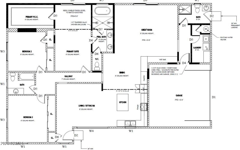
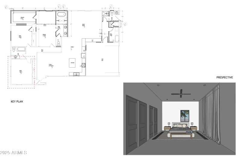
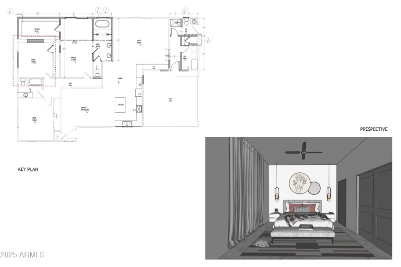
Scottsdale prime location fix and flip investment opportunity. It comes with approved plans to do an a 272 square feet of addition to enlarge the master bed and bath and add master walk-in closet.
It will become 3 bedroom, 3 bath with large laundry room. Large open floorplan with modern design. Huge kitchen and wet bar.
The space is carefully optimized to enhance the usage and bring the luxury feel. This will be a one of a kind flip that may shine in the neighborhood.
East on Osborn to 82nd Pl, South to Property, NEC of Earl & 82nd Pl
Dwelling Type: Residential
Subdivision: Village Grove 17
Year Built: 1964, County: N/A
East on Osborn to 82nd Pl, South to Property, NEC of Earl & 82nd Pl
Listing is courtesy of Niksi