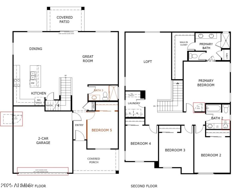
The Aspen floorplan is one of our most popular layouts with 2,624 sq. ft. and 5 bedrooms, 3 full baths, loft and huge backyard! The kitchen is open and features rich warm brown shaker cabinets, beautiful white quartz countertops and tiled backsplash plus 2-toned paint and upgraded flooring throughout. This home is on a N/S facing lot and mountain views of the White Tanks and Estrella Mountains! Estimated Home Completion: September 2025!
From I-10 West, go South on Watson past Lower Buckeye, go East on W. Kingman St., Right on 234th Lane, Left on Florence Ave., home will be on the left.
Dwelling Type: Residential
Subdivision: BENTRIDGE PHASE 2
Year Built: 2025, County: N/A
From I-10 West, go South on Watson past Lower Buckeye, go East on W. Kingman St., Right on 234th Lane, Left on Florence Ave., home will be on the left.
Listing is courtesy of Landsea Homes
Sign in to your account to continue