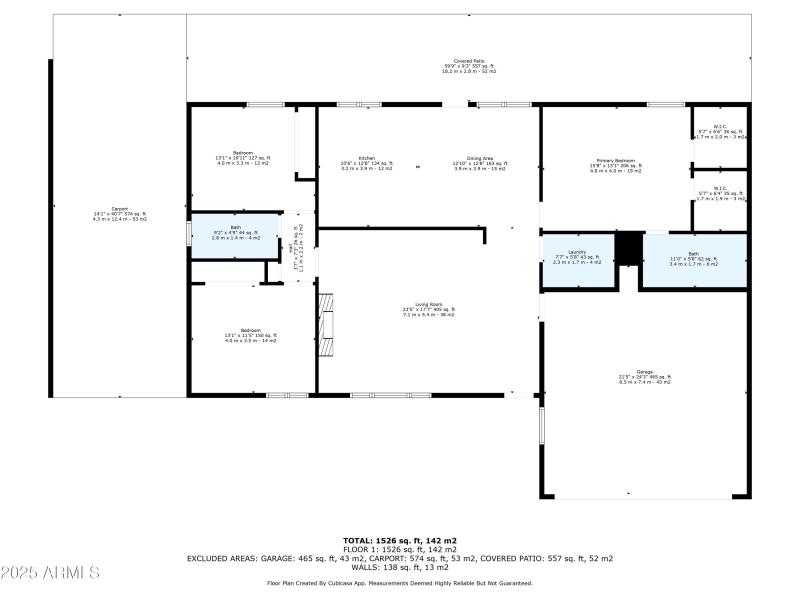
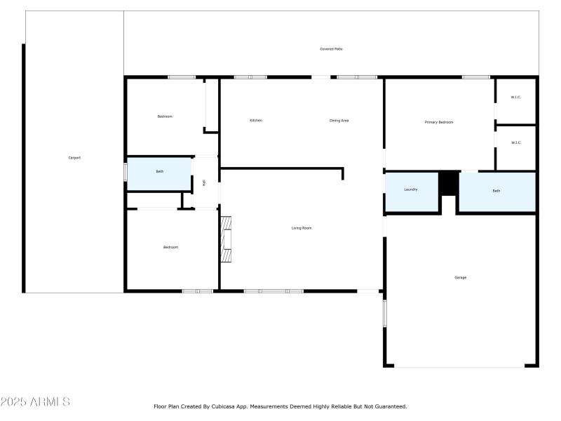
A second chance to make an offer! This property features 3 spacious bedrooms, and 2 bathrooms with a thoughtfully designed split floorplan. The primary bedroom boasts two walk-in closets, and there is brand-new carpeting throughout, replaced in just 8/2025! High ceilings in the living room and kitchen create an open and airy feeling! Enjoy space and being an owner of an acre+ lot (45,000 sqft) with a barn, RV parking cover, RV hook-ups, horses are welcome, along with a gated & covered back patio area. Have peace of mind with a new roof as of 2018! Don't miss the incredible opportunity to own a piece of paradise!
Dwelling Type: Residential
Subdivision: PHOENIX SKYLINE WEST 3
Year Built: 1993, County: N/A
Listing is courtesy of RETHINK Real Estate