Move-In Ready on 10/23/2025! PUMPKIN SPICE MOVE-IN SPECIAL! $399 MOVE-IN, if moved in on or before 10/30/2025 (latest possible move-in date)! Move-In special includes the admin fee and ONE WEEK FREE RENT! $130 paid per month over 10 Months towards security deposit! Prorated rent due with $399 admin fee upon approval! 1st full month of rent is due on NOV 1ST! (Animal fees are not included in this move-in special and are due at move-in if applicable)
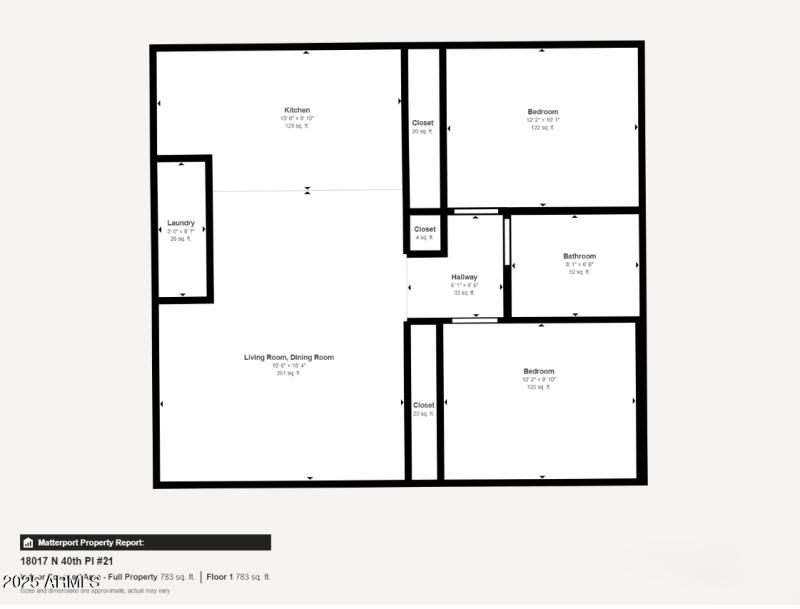
2Bed/1Bath Apt at 40th St/Union Hills! Home inc living room, kitchen, 2 beds, 1 bath, w/d hookups, and tile flooring. Kitchen inc stove, refrigerator, pantry, microwave, and dishwasher! Utilities to stay in the owner's name, billed to tenant in portal.
Heading East on Union Hills, Make a right onto 40th St. Make a left on Desert Cactus Street and an immediate right onto 40th Pl.
Dwelling Type: Residential Lease
Subdivision: VILLA PARADISE
Year Built: 2005, County: N/A
Heading East on Union Hills, Make a right onto 40th St. Make a left on Desert Cactus Street and an immediate right onto 40th Pl.
Listing is courtesy of Market Edge Realty, LLC