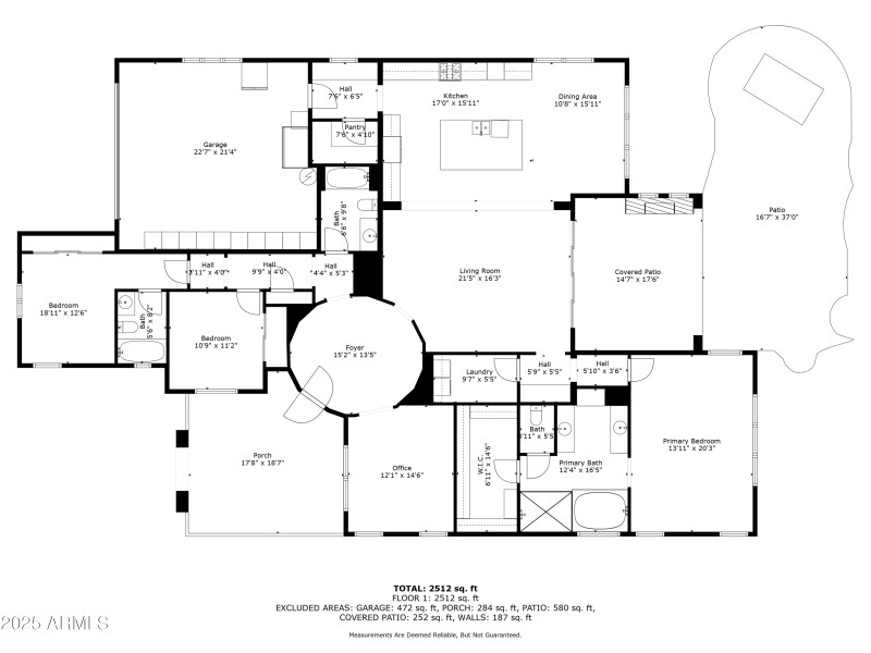
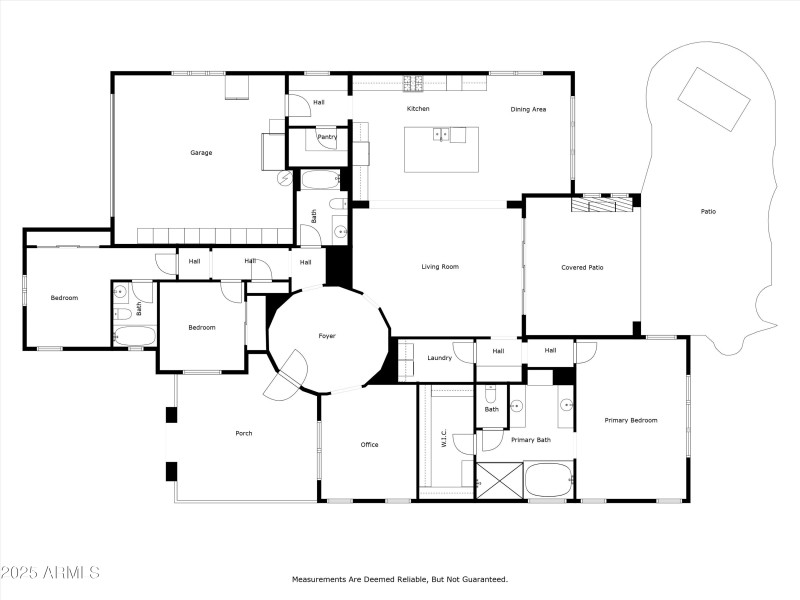
STUNNING MARACAY HOME IN VICTORY - Nestled at the foothills of the White Tank Mountains, this exquisitely upgraded residence is truly a dream come true. Featuring a breathtaking 18-foot rotunda entry illuminated by a custom chandelier from RH, this home is both energy-efficient and meticulously maintained.
With 3 bedrooms, 3 bathrooms, and a den/study, the space highlights a gourmet kitchen equipped with custom cherry cabinetry, convenient pull-outs, under-mount lighting, upgraded granite countertops, stainless steel Profile appliances, double ovens, and a stainless hood over the gas cooktop. An intricately designed tile backsplash and a generous walk-in pantry enhance the kitchen's functionality. Abundant natural light flows throughout the home, thanks to expansive glass sliding doors and large windows along the southern exterior. Other notable features include an extended tile shower in the master bath, an enlarged master bedroom closet, plantation shutters throughout, and surround sound wiring in the great room and outdoor patio.
Step outside to enjoy a built-in outdoor kitchen and an elegantly lit water feature, complemented by a cozy gas fireplaceperfect for relaxing and entertaining during Arizona's cool nights from September to April. Misting system for the warmer days of summer.
Don't miss your chance to own this incredible home with over $70K in upgrades in the vibrant Victory at Verrado community.
Dwelling Type: Residential
Subdivision: VERRADO VICTORY DISTRICT PHASE 1
Year Built: 2015, County: N/A
Listing is courtesy of Realty ONE Group
Sign in to your account to continue