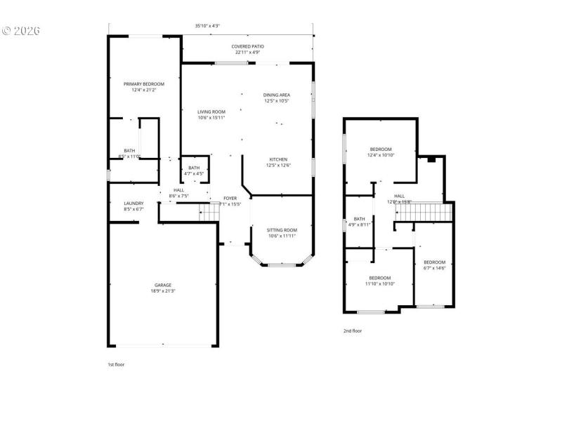
SHIP SHAPE, CUSTOM, OCEAN BLUE 2-story home in beautiful Ocean Trails with a pretty walking trail straight down to the beach! Freshly painted & renovated, home features Hardiplank Lap Siding, Greatroom with a slider to a west facing covered patio, custom Myrtlewood Breakfast Bar & “Live Edge” Windowsills, Schrock Cabinetry, Vinyl Plank floorings, 2051 sq. ft., 3 bedrooms, 2 other bonus rooms/offices, one with a bay window, as well as a flex space on the stair landing, 2.5 baths. Master Bedroom has a slider to patio, wall to wall carpet & its own tiled bathroom with Step In Shower. Also has a large Laundry Room, 2 car finished garage with Built In Cabinets/ Workbench, a front porch, a mostly fenced yard & great view of our local Shore Pines & wildlife such as deer & turkeys. Come join our enviable Bandon lifestyle!
From Hwy 101, go west on Seabird, R on Lincoln, Right on Rogers, Left on Franklin to sign on Left.
Dwelling Type: Residential
Subdivision: OCEAN TRAILS
Year Built: 2019, County: US
From Hwy 101, go west on Seabird, R on Lincoln, Right on Rogers, Left on Franklin to sign on Left.
Listing is courtesy of Chas. Waldrop Real Estate LLC
Sign in to your account to continue