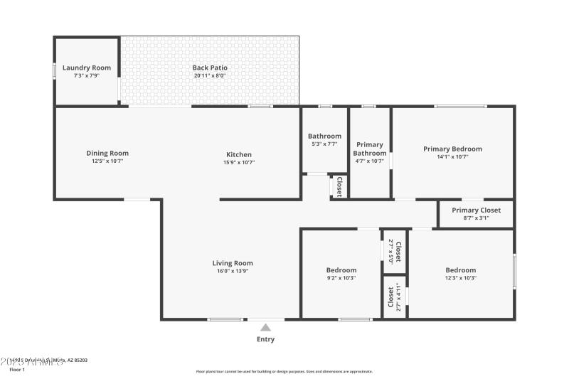
This beautiful ranch-style retreat sits on a massive 10,000+ square foot lot, complete with an extended driveway and 2 separate double RV gates! Bring all your toys: RV, Boat, ATV-you name it! Even better, there is no HOA to hold you back. Step inside and you will find a single story layout with no stairs and tile throughout. The home has been thoughtfully remodeled with all the finishes you love, from quartz countertops and shaker cabinets to a stunning backsplash that ties the kitchen together. In the last 3 years, the big ticket updates have already been done for you including new windows, a custom Andersen sliding door, roof, electrical panel, water heater and even a shed for extra storage. Your master bedroom offers a walk-in closet designed for both style and function and an en-suite bathroom featuring dual vanities and a beautifully tiled shower. The backyard is where this home really shines. With no one behind you, the space feels private and serene, perfect for relaxing or entertaining in total comfort. The wide open space is perfect for pets to run freely and kids to play safely, giving everyone plenty of room to enjoy. Whether it's a weekend BBQ or a future pool to splash in, this backyard is ready to become the backdrop for countless memories.
South on Stapley, Left on E Dartmouth, Left on Downing, House on Left
Dwelling Type: Residential
Subdivision: PALM GARDENS OF MESA UNIT 3 AMD
Year Built: 1965, County: N/A
South on Stapley, Left on E Dartmouth, Left on Downing, House on Left
Listing is courtesy of Keller Williams Integrity First