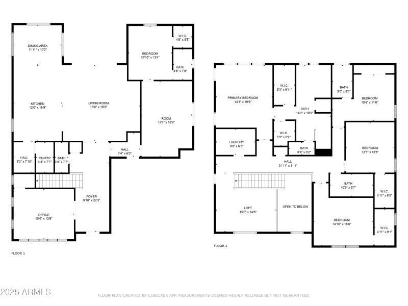
Step into a home that perfectly balances warmth and space for everyone to retreat and recharge. With six spacious bedrooms and four and a half bathrooms, including two en suites, this floor plan offers incredible flexibility for your family and the ability to host guests comfortably.
The gourmet kitchen is the heart of the home, designed for connection and everyday living, featuring generous counter space, quality finishes, and seamless flow into the family and dining areas. Vaulted ceilings and natural light add to the open, inviting feel.
Outside, the beauty of this property truly shines. Set on an impressive 12,000+ sq ft lot, the backyard offers endless potential to create your own retreat, whether it's a pool, garden, or outdoor entertaining space to take in Arizona sunsets. This is more than a house, it's a home that feels special the moment you walk in. You have to experience it to truly appreciate all it offers.
From Rittenhouse, head West on Riggs, South on Signal Butte, East on Twilight, South on 224th Pl, East on Twilight, North on 226th St - home is on your right.
Dwelling Type: Residential
Subdivision: HARVEST QUEEN CREEK PARCEL 1-2
Year Built: 2021, County: N/A
From Rittenhouse, head West on Riggs, South on Signal Butte, East on Twilight, South on 224th Pl, East on Twilight, North on 226th St - home is on your right.
Listing is courtesy of eXp Realty