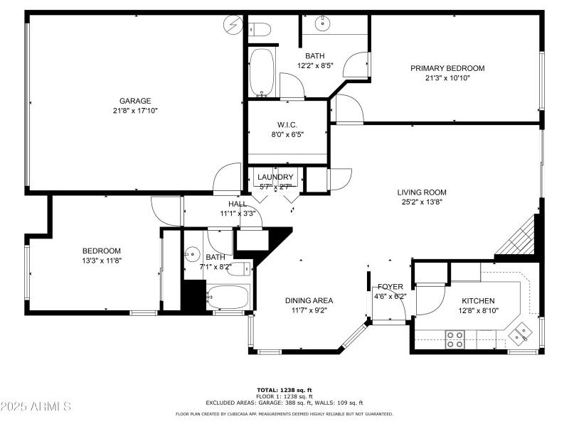
This single-level home was reconstructed from the ground up in 2009 and sits in a prime North Phoenix location near I-17, 101 & 51. 2024 HVAC. The inviting great room floor plan showcases soaring vaulted ceilings, upgraded ceiling fans, and a cozy corner wood fireplace. A new sliding door opens to redwood deck & pergola. The bright kitchen features cherry-stained cabinets, brand new Frigidaire & GE stainless appliances, and pantry, along with a separate breakfast/dining room. Spacious primary suite includes a large walk-in closet plus large bathroom. 2 car garage offers storage cabinets, epoxy floor & LiftMaster door. Low HOA fees. Low maintenance front & backyard. The owner has made this home truly move-in ready. Close to shopping, dining, & everyday conveniences
Exit Loop 101 at 7th Street, go South, turn Right on Wescott Drive, Right on N 6th Street, Left on Topeka. Home is on the Right
Dwelling Type: Residential
Subdivision: MERIT ESTATES LOTS 1 THRU 58
Year Built: 1984, County: N/A
Exit Loop 101 at 7th Street, go South, turn Right on Wescott Drive, Right on N 6th Street, Left on Topeka. Home is on the Right
Listing is courtesy of HomeSmart