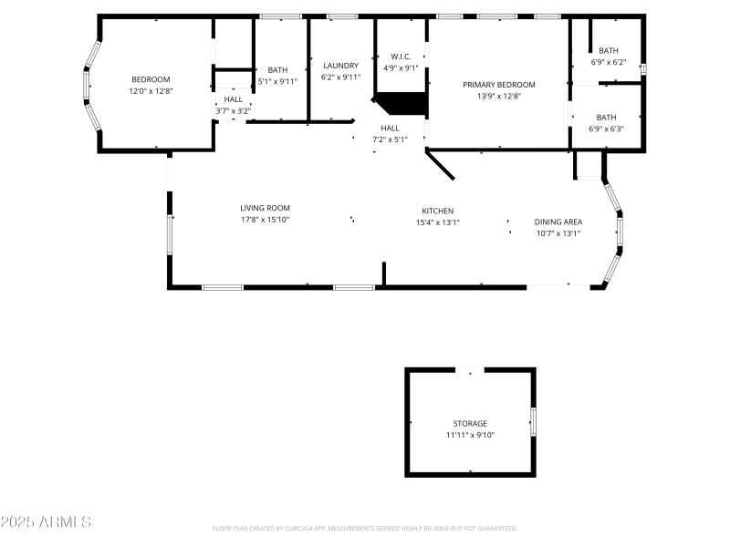
Montesa, a gated 55+ Active Adult Community showcasing breathtaking views of the Superstition Mountains! This spacious 2 bedroom, 2 bath home offers 1,540 sq ft of comfortable living with a 2-car carport and an open floorplan filled with natural light from large windows throughout. The great room flows seamlessly into the kitchen, featuring quartz countertops, tile backsplash, upgraded maple cabinets providing abundant storage, GE stainless steel appliances, breakfast bar, recessed lighting, and skylights. Large breakfast room with sliding glass doors that open to a generous patio area. Additional highlights include tile flooring, a large laundry room with folding table, washer/dryer, and ample cabinetry. A detached framed-in 10x12 storage room adds even more functionality. Experience resort-style living in Montesa with its vibrant amenities and unbeatable views.
SOUTH ON MONTESSA TO GUARD GATE. IDENTIFY YOURSELF TO GUARD AND PROCEED TO LOT 409. SOUTH ON MONTESSA TO MONTEREY, WEST ON MONTEREY TO PROPERTY
Dwelling Type: Residential
Subdivision: S7 T1S R9E
Year Built: 2014, County: N/A
SOUTH ON MONTESSA TO GUARD GATE. IDENTIFY YOURSELF TO GUARD AND PROCEED TO LOT 409. SOUTH ON MONTESSA TO MONTEREY, WEST ON MONTEREY TO PROPERTY
Listing is courtesy of Just Selling AZ