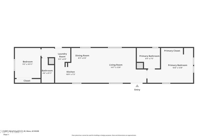
Welcome to this charming 1-story mobile home featuring 2 bedrooms and 2 bathrooms. New water heater, electrical panel and roof! Step inside to find an open layout with modern vinyl flooring, granite countertops, and crisp white cabinetry that pairs perfectly with stainless steel appliances. The spacious kitchen and dining area make entertaining easy, while the bedrooms provide comfort and privacy. Enjoy the convenience of a carport and driveway for ample parking. This move-in ready home blends style, comfort, and functionality ideal for everyday living.
Take US-60 E, exit 186, right on S Ellsworth Rd, left on E Broadway Rd, destination on right, lot 49.
Dwelling Type: Residential
Subdivision: Holiday Palms
Year Built: 1984, County: N/A
Take US-60 E, exit 186, right on S Ellsworth Rd, left on E Broadway Rd, destination on right, lot 49.
Listing is courtesy of Real Broker