Live in a piece of Phoenix history in this captivating Great Mission Revival home! Nestled in the prestigious Willo Historic District, this residence exudes preserved charm, transporting you to a bygone era.
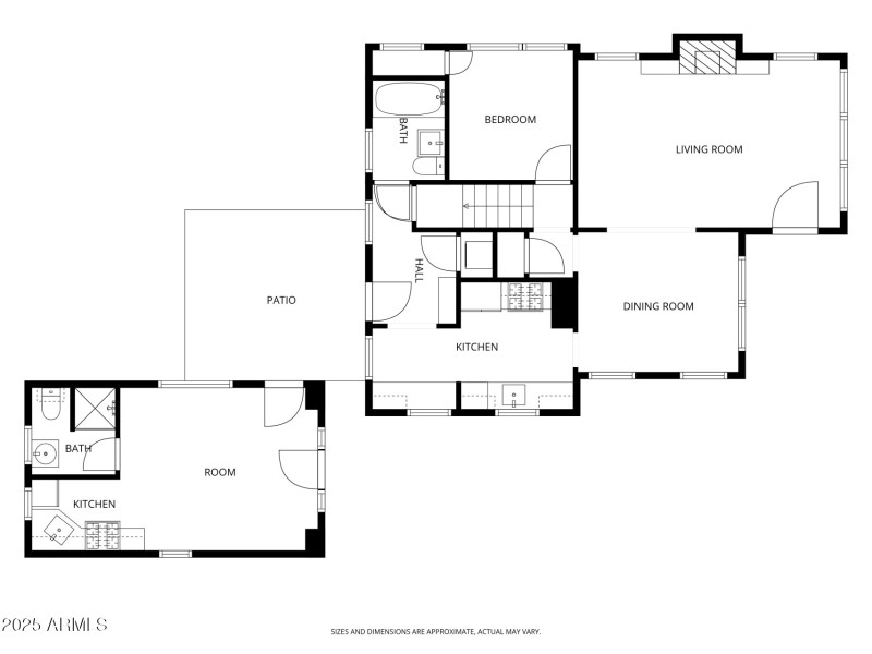
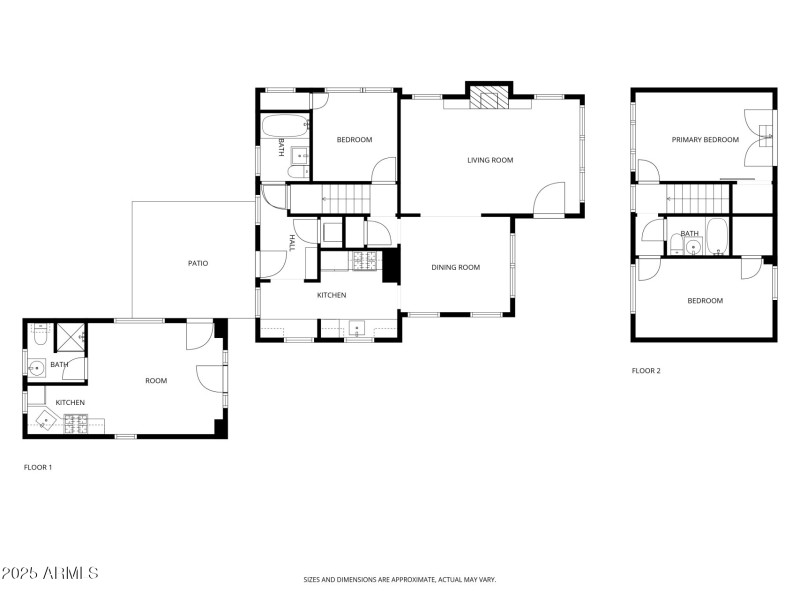
The main home welcomes you with gleaming original hardwood floors, a spacious living room with built-in cabinetry, and a striking wood-burning fireplace. Abundant natural light pours in through large windows, including four that have been updated with energy-efficient dual panes. The formal dining room is perfect for entertaining, while the galley kitchen offers granite countertops and generous storage. Upstairs, two serene bedrooms and a full bath create a private retreat. A third bedroom and full bath on the main level provide flexibility for guests or multigenerational living. Both bathrooms feature exquisite tilework that reflects the home's historic charm.
A separate casita with its own entrance offers endless possibilitiesguest suite, home office, or creative studio. It includes a full bathroom, kitchenette, finished concrete floors, and modern amenities such as A/C.
The backyard is a true sanctuary, featuring mature landscaping, a sparkling pool, and a relaxing hot tub. Enjoy dining al fresco on the paved patio, all within the privacy of a fully fenced yard with no alley access. A one-car carport plus a long driveway provide ample parking.
From Thomas Rd head S on 3rd Ave and then turn left onto W Lewis Ave. Property is on the right.
Dwelling Type: Residential
Subdivision: LAS VERDES
Year Built: 1920, County: N/A
From Thomas Rd head S on 3rd Ave and then turn left onto W Lewis Ave. Property is on the right.
Listing is courtesy of Capstone Realty Professionals