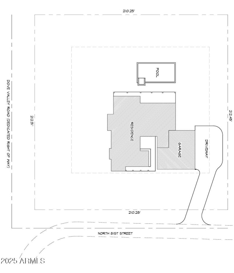
This highly detailed custom estate can be tailored to your individual needs - Within a secluded neighborhood bordering Whisper Rock Golf Club and 4,199 sq ft of exquisite living space, this 4 bed, 4.5 bath home is sure to impress with the ability to entertain guests. Truly seamless indoor-outdoor living. Features include an outdoor kitchen & grill with Thor appliances, gourmet kitchen, oversized lanai, and prewire for home electronics & home automation. Options to include a custom elevation, ICF block construction, wine cellar in cedar, glass, or stone. Be close to the best hiking trails and world-renowned golf, with easy access to the Pima Dynamite Trailhead and Tonto National Forest. A rare opportunity in a premier desert setting. Your inquiry into this custom estate is warmly welcomed.
From Westland, South on Hayden to Smokehouse Tr to 81st St
Dwelling Type: Residential
Subdivision: N/A
Year Built: 2026, County: N/A
From Westland, South on Hayden to Smokehouse Tr to 81st St
Listing is courtesy of Realty ONE Group
Sign in to your account to continue