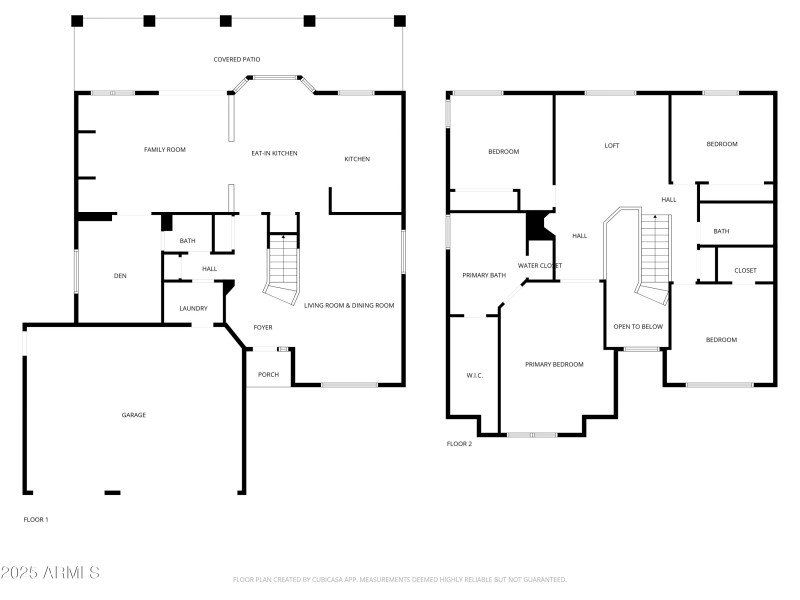
Located just minutes from Westgate, this spacious two-story home offers 4 bedrooms plus a versatile den, a loft and 2.5 bathrooms. Enjoy a fully updated kitchen with quartz countertops and stainless steel appliances, perfect for entertaining, along with stylishly renovated bathrooms throughout. The home features a 3-car garage, providing ample storage and parking. With a flexible floor plan, upgraded interior, and prime location near shopping, dining, and entertainment, this home is a must-see!
From Glendale head south on 75th Ave to Maryland, turn right on Maryland (turns into Discovery), turn right on 78th Lane, make first right on Stella Ave, the home is ahead on the right
Dwelling Type: Residential
Subdivision: COBBLEFIELD
Year Built: 2000, County: N/A
From Glendale head south on 75th Ave to Maryland, turn right on Maryland (turns into Discovery), turn right on 78th Lane, make first right on Stella Ave, the home is ahead on the right
Listing is courtesy of DPR Realty LLC
Sign in to your account to continue