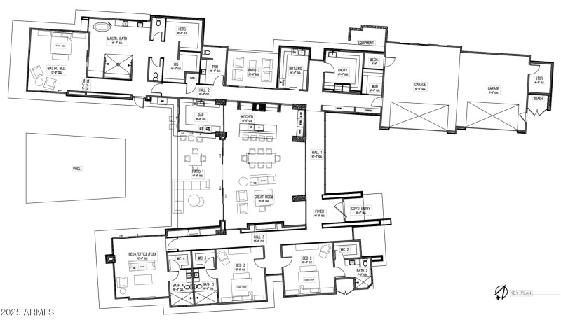
Steve Jensen Homes presents the pinnacle of luxury living in the prestigious gated community of Ocotillo Estates. Set on a sprawling 5.21 acres, this 5,252 sq. ft. masterpiece embodies both sophistication and comfort.
From the moment you arrive, every detail reflects world-class craftsmanship and design. The great room's soaring 15' ceiling and statement fireplace set the stage for gatherings, while the chef's kitchen impresses with a waterfall-edge island, custom cabinetry, Wolf and Sub Zero appliances, premium countertops, and designer lighting. An adjacent bar with glass windows opening to the outdoors makes seamless entertaining effortless, complemented by a butler's pantry, mudroom, and expansive laundry suite. The primary retreat is a sanctuary with dual walk-in closets, a spa-inspired bath featuring a soaking tub under a chandelier, dual vanities, and a luxurious walk-in shower. Two additional bedrooms each with their own bathrooms offer privacy and comfort, while a flexible fourth bedroom/office/flex room adapts to your lifestyle needs.
Outdoor living is reimagined with covered patios, a sparkling heated pool and spa, a gas fireplace and fire pit, and an outdoor barbeque perfect for evenings under the Arizona sky. Floor-to-ceiling glass blurs the line between indoors and out, inviting natural light and panoramic views into every space.
Practical luxury abounds with a 4-car garage, abundant storage, and integrated smart home and energy-efficient systems. Blending modern elegance with timeless comfort, this residence is more than a home, it's a statement of refined desert living. And with its premier location, you're just minutes from Carefree and Cave Creek's finest restaurants, boutique shopping, championship golf, and world-class spas.
North at the 4-way stop on Sundance Trail, left on Tranquil Trail, left on Rising Sun, right on Stevens to the gate. Through gate - home is on the right.
Dwelling Type: Residential
Subdivision: OCOTILLO RIDGE ESTATES
Year Built: 2025, County: N/A
North at the 4-way stop on Sundance Trail, left on Tranquil Trail, left on Rising Sun, right on Stevens to the gate. Through gate - home is on the right.
Listing is courtesy of Engel & Voelkers Scottsdale
Sign in to your account to continue