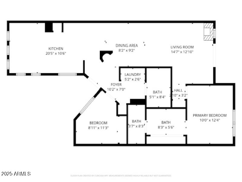
Affordable Heart of Scottsdale Living! (85251) Rare opportunity for buyers seeking affordability, value, & potential in one of Scottsdale's most convenient locations. A touch of TLC will bring incredible results! PRICED TO SELL AND LOW HOA fees that include water, sewer, & trash makes expenses predictable and budget friendly! Abrivado offers comfort, convenience & low maintenance living inside a gated community just minutes from Old Town Scottsdale. This 1999-built condo features 2 bedrooms, 1.75 baths, & a private single-car garage, delivering the perfect balance of comfort, privacy, and prime location! Enjoy the best of Scottsdale living: walk or bike to restaurants, boutique shopping, art galleries, and nightlife, or explore Camelback Mountain's iconic hiking trails and top-rated golf courses nearby. Quick access to Scottsdale Fashion Square, resort spas, and local farmers markets makes this location unbeatable. Perfect for first-time buyers, seasonal residents, or anyone looking for an affordable lock-and-leave Scottsdale lifestyle. This home truly delivers the ideal combination of comfort, location, and lifestyle all at an attainable price point. Don't miss your chance to secure one of Scottsdale's most desirable lock-and-leave lifestyles!
Dwelling Type: Residential
Subdivision: SCOTTSDALE ABRIVADO
Year Built: 1999, County: N/A
Listing is courtesy of Midnight Realty