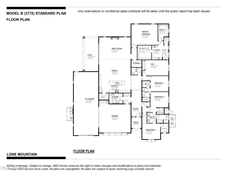
NEW CONSTRUCTION - TO BE BUILT. (main photo is of new build next door). Boutique community of only five homes. Amazing family or multi-gen opportunity. 3772 sq ft main residence w/2 car garage
& 1225 sq ft oversized RV garage plus complete 880 sq ft 1 bedroom guest house, & resort style backyard w/pool all on over 2 acres w/no HOA. Open -concept floor plan is perfect for the active family. True entrance hall leads to open Great Room/Dining Room with gas fireplace and Chef's Kitchen with walk-in Pantry, quartz counters, S/S appliances, & an amazing island/breakfast bar. Large Primary Suite w/exit to the backyard, spa Bath w/double vanities, & large walk-in complete w/built-ins. 2 guest bedrooms are en-suite, 2 guest bedrooms share a dual-entry bath. Design of the house creates a desired N/S exposure. Interiors by award winning designer, Misty Cowen, of Dwelling Design.
West on E. Lone Mountain Rd. to new construction on South side of Lone Mountain at N. 57th Terrace. Do not use GPS, it will take you to the wrong property.
Dwelling Type: Residential
Subdivision: metes & bounds
Year Built: 2025, County: N/A
West on E. Lone Mountain Rd. to new construction on South side of Lone Mountain at N. 57th Terrace. Do not use GPS, it will take you to the wrong property.
Listing is courtesy of Keller Williams Realty Sonoran Living
Sign in to your account to continue