Courtesy Listing for MGN Homes - Michelle Traphagan, Sales * Located in Sundance 2, in the Sundance 1 RV Resort 55+ Community.
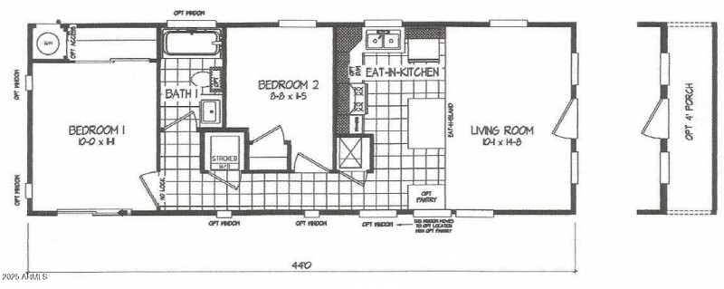
Features: 2 BEDROOM, 1 BATH ^ 9' CEILINGS ^ 39'' OVERHEAD CABINETS ^ 4 UPGRADED ^ APPLIANCES ^ LED RECESSED LIGHTING IN KITCHEN ^ STACKABLE WASHER & DRYER - updated 2023 ^ CEILING FANS / LIGHTS
WALK IN SHOWER ^ VINYL PLANK FLOORING ^ ISLAND IN KITCHEN ^ NEW HARDWARE IN BATHROOM -updated in 2024 ^ LAMINTATE COUNTER TOPS UNFURNISHED ^ 674 SF with Porch
EXTERIOR:
EAST FACING, CORNER LOT ^ 18' X 54' DOUBLE DRIVE ^ 18' X 44' DOUBLE AWNING
10' X 12' WIRED SHED ^ WHITE VINYL DUAL GLAZE LOW E WIND ^ IRRIGATION SYSTEM ^ HEAT PUMP ^ GUTTERS ON NON-AWNING SIDE ^ 16' DECK ON FRONT OF HOME ^ LANDSCAPING W TREES ^ ASSUMABLE TERMITE CONTRACT
N on Thornton to 3rd Entrance on the left or Sundance 2
Dwelling Type: Residential
Subdivision: Sundance 2 Lot MH45
Year Built: 2022, County: N/A
N on Thornton to 3rd Entrance on the left or Sundance 2
Listing is courtesy of JAnnSRE LLC
Sign in to your account to continue