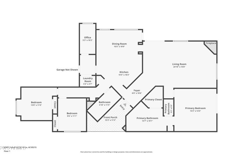
Beautiful home backs to RMR Golf Course with Views. Featuring 3 Bedrooms, 2 Baths & a Den/Office. You enter the home thru the Foyer, which takes you to the spacious & cozy Living Room, featuring cathedral ceilings, a cozy Fireplace & entry to the primary Bedroom & Bath. From there you enter the Kitchen/Dining area with newer GE appliances, white cabinets & raised Island, plus a spacious Dining area to host gatherings. You will also find a small private Office/Den w/built-in desk & cabinets.
There are also 2 more bedrooms plus a Laundry room. Plantation Shutters on all windows.
There is also a large side yard with covered Patio for your grilling & storage needs. The Backyard features Views! HOA takes care of front yard maintenance. RMRCC offers Golf, Pool/Spa,Tennis, Exercise & more.
North on Power to Redmont, Left onto Redmont, go past Golf Course on left, then make a left onto Sugarloaf St. Home is on your left.
Dwelling Type: Residential
Subdivision: RED MOUNTAIN VILLAGE LOT 1-252
Year Built: 1988, County: N/A
North on Power to Redmont, Left onto Redmont, go past Golf Course on left, then make a left onto Sugarloaf St. Home is on your left.
Listing is courtesy of RE/MAX Elite
Sign in to your account to continue