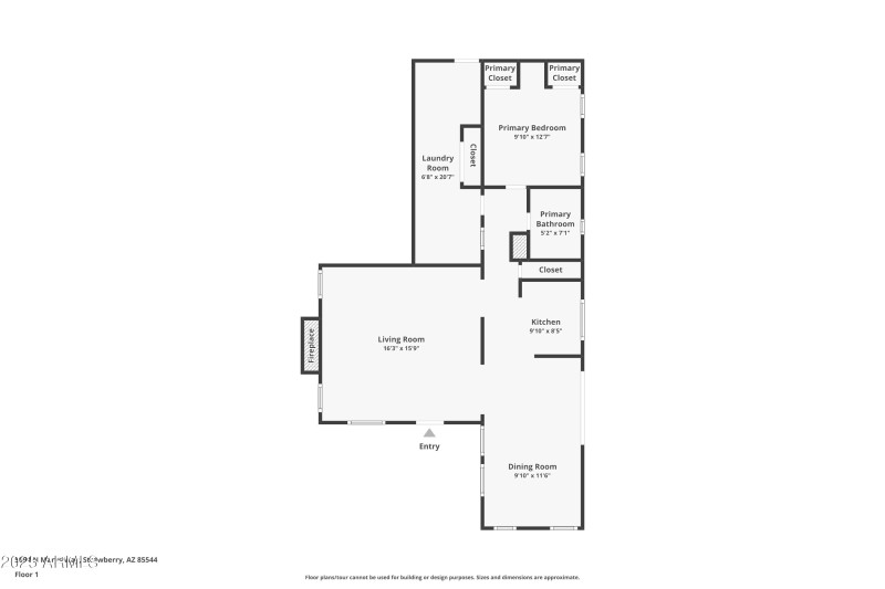
Investor special, a true cabin in the pines and a great value in Shady Lane Estates Lot 32. This property combines a manufactured home with a site built addition of roughly 900 sq ft, plus a deck for morning coffee among the trees, a carport for easy year round access, and a fenced lot for pets and privacy. Sold as is and priced accordingly. Quiet setting with tall pines and fresh mountain air. Ideal as a getaway or comfortable full time retreat. Cash offers only.
Please follow GPS instructions in SHADY LANE ESTATES
Dwelling Type: Residential
Subdivision: SHADY LANE ESTATES
Year Built: 1958, County: N/A
Please follow GPS instructions in SHADY LANE ESTATES
Listing is courtesy of Tyche Real Estate LLC