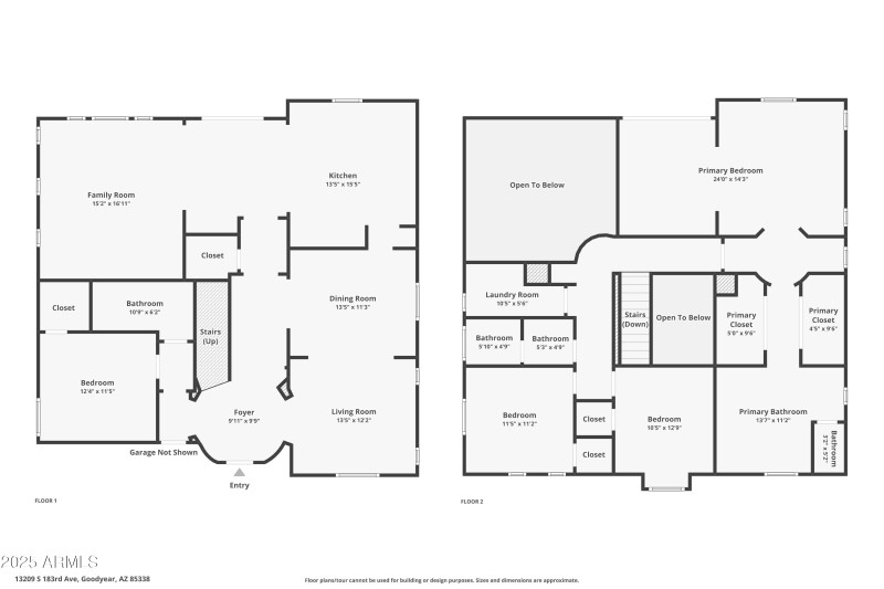
Premium corner lot backing to a wash with no neighbors behind or on one side. This meticulously maintained 4-bed, 3-bath home combines modern efficiency and with thoughtful updates.
Enjoy OWNED SOLAR with average APS bills of just $76/month. With newer Andersen windows (2018-2023), brand-new carpet (2025), two updated HVAC systems (2018), and a 3-car garage. An iron gate opens to a wrap-around courtyard and bright, open layout with formal living, dining, and a spacious family room.
The kitchen offers granite counters, an updated copper sink, and an island, while the primary suite includes a sitting area, private balcony, and spa-like bath.
Outside, relax amid lush trees, travertine pool surround, desert landscaping, mountain views, a covered patio, and built-in BBQ. Estrella in Goodyear offers a true resort-style lifestyle surrounded by mountain views, scenic lakes, and lush desert beauty. Residents enjoy two man-made lakes for kayaking, paddle boating, and walking, plus over 50 miles of hiking and biking trails. The neighborhood is clean, quiet, and well maintained, offering a friendly, small-town feel with regular community events, farmers markets, and top-rated schools all just a short drive from Goodyear's main shopping and dining areas.
There are two premier clubs, Starpointe on North Lake with a fitness center, lap pool, waterpark, and lakeside dining, and Presidio at the base of the foothills with a resort-style pool, splash pad, gym, fire pits, and The Cantina restaurant. Estrella also offers scenic trails and a championship golf course.
Head west on W Westar Dr, Turn right onto W Verdin Rd, Turn left onto S 183rd Ave. Property will be on the right.
Dwelling Type: Residential
Subdivision: ESTRELLA MOUNTAIN RANCH PARCEL 99
Year Built: 2007, County: N/A
Head west on W Westar Dr, Turn right onto W Verdin Rd, Turn left onto S 183rd Ave. Property will be on the right.
Listing is courtesy of My Home Group Real Estate