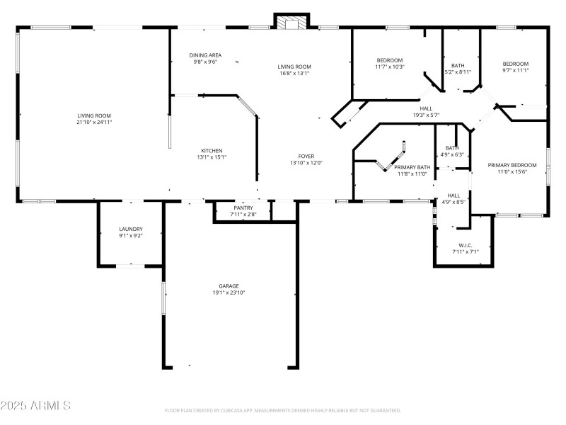
Single level home on a large .32-acre lot. Enjoy red rock views from house and the big back yard. 3BD/2BA, plus a huge family room/great room with nice red rock views. 2164sf. on quiet cul-de-sac. New Roof! Vaulted ceilings give an open, spacious feeling. Updated granite kitchen w/walk-in pantry. Lots of cabinets and a breakfast bar in the great room. Master bath completely updated with large shower including 2 separate shower heads. Huge, landscaped backyard, with a sitting area to enjoy the red rock, shade trees, grass and storage shed. Side yard has a graveled toy parking area behind the cedar fence accessed through double gates. Attached 2-car garage. The HOA requires a 30-day minimum rental. No short-term rentals allowed. Adjacent lot (30 W Valley Dr) is also for sale by same owne
SR 179 to Verde Valley School Rd, Right on West Valley Dr. Home at center of cul-de-sac.
Dwelling Type: Residential
Subdivision: OAK CREEK COUNTRY CLUB WEST
Year Built: 1993, County: N/A
SR 179 to Verde Valley School Rd, Right on West Valley Dr. Home at center of cul-de-sac.
Listing is courtesy of Coldwell Banker Realty