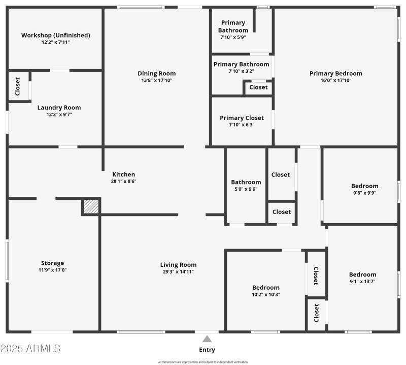
Move-in ready and set on a massive double lot (sale includes APN 205-03-103) with no HOA, this 1,908 sqft home gives you space to let your imagination run wild. Inside, you'll find three bedrooms, two baths, and an office that could easily serve as a fourth bedroom. The galley kitchen with farmhouse sink flows into a huge dining room and spacious family room for effortless entertaining. A bonus room and indoor workshop add even more versatility. Outside, the oversized yard with RV gate offers endless potential for play, projects, an ADU, or creating your dream backyard retreat in the heart of Coolidge.
South on Arizona Blvd to Lindbergh Ave. East (left) on Lindbergh Ave. Property will be on the North (left) side of the road.
Dwelling Type: Residential
Subdivision: NORTH COOLIDGE
Year Built: 1975, County: N/A
South on Arizona Blvd to Lindbergh Ave. East (left) on Lindbergh Ave. Property will be on the North (left) side of the road.
Listing is courtesy of Barrett Real Estate
Sign in to your account to continue