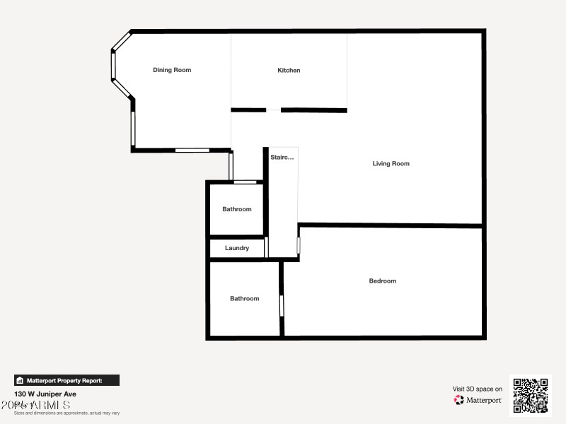
Welcome to this inviting Flagstaff home offering the perfect blend of comfort and convenience. With 3 bedrooms, 2.5 baths, plus a dedicated office that could easily serve as a fourth bedroom, the layout is designed to fit a variety of lifestyles. The primary suite is thoughtfully located on the main level for ease of living, while two additional bedrooms are upstairs, providing flexibility and privacy. Vaulted ceilings and a cozy fireplace create a warm and spacious atmosphere in the main living area. Step outside to enjoy the private backyard, ideal for relaxing or hosting. The home also features a desirable south-facing garage for easy year-round access. Situated in a prime location just a few blocks north of FMC, you'll appreciate both the tranquility of the neighborhood and quick access to downtown, trails, and local amenities. This home combines functional design with a fantastic location, making it a must-see!
North San Francisco, turn left on Juniper, home is on the right.
Dwelling Type: Residential
Subdivision: Juniper Meadows
Year Built: 1997, County: N/A
North San Francisco, turn left on Juniper, home is on the right.
Listing is courtesy of Flagstaff Top Producers Real Estate