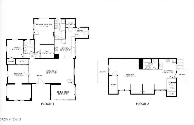
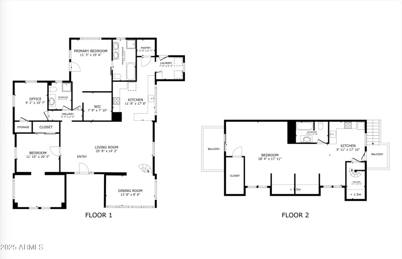
Discover the charm of the historic GarfieldNeighborhood in this rare 4bed, 3bath bungalow offering skyline views, effortless walkability & quick freeway access. With almost 2500sf, this home is a true downtown Unicorn, featuring enclosed sunrooms, 10' ceilings & SPACE! The upstairs deck has city skyline views that are magical. The upstairs can function as either a 2nd split master suite or as a full ADU/in-law setup with its own entrance...ideal for family you may want to keep at arms length or OR use as rental income. The heart of this home is the KITCHEN, new cabinetry, upgraded appliances like a gas range, quartz countertops, lighting is perfect for an intimate night of cooking at home or full out entertaining. The jumbo sized lot with automatic gate opener allows easy parking. The Outright Owned Solar, newer roof, bathrooms, flooring blend seamlessly with historic character, offering a unique combination of charm, comfort and versatility in one of downtown Phoenix's most engaged neighborhoods.
North on 14th from Van Buren, 3rd house on West side north of Polk Street.
Dwelling Type: Residential
Subdivision: STEWART TRACT
Year Built: 1916, County: N/A
North on 14th from Van Buren, 3rd house on West side north of Polk Street.
Listing is courtesy of Compass
Sign in to your account to continue