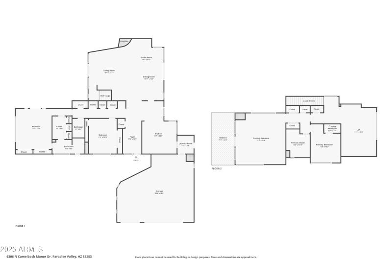
Architect: Fred Griffin, 1955 Masterpiece at CAMELBACK MANOR, a sleek modern classic, block construction with warm Asian undertones. The pool was installed in the early 2000's. In 2010 the second floor was permitted and built by builder Dan Madison; Dan's work is recognized for its high-quality construction and architectural details, with some projects even incorporating advanced ''green'' and energy-efficient features. All 3 bedrooms are en-suite, here in Paradise Valley's most desirable pocket, overlooking Camelback and Mummy Mountain. 2 of 5 Car Garages are within a detached 400 sf building.
A short walk to Camelback Inn, Mountain Shadows, Montelucia, Sanctuary, Paradise Valley Country Club or a short ride to Sky Harbor Airport, Old Town Scottsdale or Fashion Square.
From Lincoln S on CAMELBACK MANOR - look for 6306, 2nd driveway is paved. You have arrived.
Dwelling Type: Residential
Subdivision: CAMELBACK MANOR
Year Built: 1955, County: N/A
From Lincoln S on CAMELBACK MANOR - look for 6306, 2nd driveway is paved. You have arrived.
Listing is courtesy of Compass