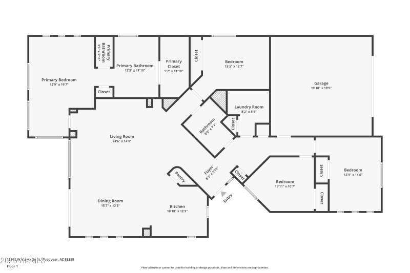
Extremely spacious and cared for home!! Large single story, 4 bedrooms and 2 bathrooms, neutral tile flooring throughout, laminate countertops in kitchen, stainless steel appliances convey, vaulted ceiling, front and backyards are landscaped and low maintenance!! The kitchen opens to the dining and family room, looking out to the beautiful backyard featuring an above-ground endless Pool/Spa that conveys - perfect for both exercise and relaxation! The community also features a pool, as well as scenic walking paths. Master bathroom has double sinks, a vanity area, separate shower/tub, and walk-in closet. Washer and dryer convey. Close to Goodyear Ballpark, other local parks. Lots of shopping, restaurants for dining out and very close the I-10 for getting around town quickly. Fall in lov
Interstate 10 West - exit on Estrella Parkway - Go South to Lower Buckeye - West to 155th Drive - North to Magnolia - Home is directly in front of intersection.
Dwelling Type: Residential
Subdivision: ESTRELLA VISTA PARCEL 8
Year Built: 2005, County: N/A
Interstate 10 West - exit on Estrella Parkway - Go South to Lower Buckeye - West to 155th Drive - North to Magnolia - Home is directly in front of intersection.
Listing is courtesy of My Home Group Real Estate
Sign in to your account to continue