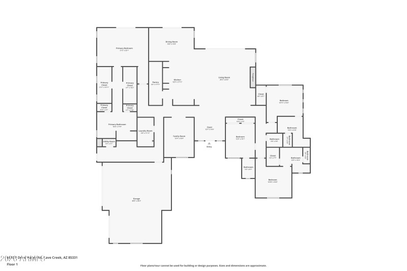
Newly completed! Exquisite luxury home by Signature Homes. This modern masterpiece sits on over an acre and features 4 bedrooms, 4.5 baths, and a 3-car garage + a 42'/800 sqft Luxury RV Garage w/ a circular drive and beautiful curb appeal. Built w/ exceptional quality-2x6 construction, upgraded insulation, Energy Star Low-E windows, and high-efficiency HVAC-this home delivers both luxury and performance. Exquisite floor plan (see document tabs) includes a spacious great room and a primary suite fireplace, a steam shower, free-standing tub, and dual custom closets. Enjoy luxury tile and wood flooring, solid-core doors, custom entry, dog wash, full pre-wiring for home automation, surround sound, whole-home audio, and Cat 6 network, sliding doors to 1,000 sq ft of covered patio and backyard. The gourmet kitchen offers hardwood cabinetry, Sub-Zero & Wolf appliances, gas range, double ovens, built-in fridge, kitchen island, custom countertops, walk-in pantry, and dining nookplus a separate dining room, mud room with lockers, and a dog wash station.
Outdoor living features generous covered patios, Belgard paver walkways, and space for an outdoor kitchen with stunning mountain views. Oversized lot has no NAOS restrictions and offers optional packages for backyard landscaping, pool/spa and a guest house.
A rare blend of modern architecture, premium craftsmanship, and resort-style possibilitiesthis Signature Homes luxury home truly has it all.
West on Ashler Hills, North on 68th St, West on Dove Valley to home on South side.
Dwelling Type: Residential
Subdivision: Metes & Bounds
Year Built: 2025, County: N/A
West on Ashler Hills, North on 68th St, West on Dove Valley to home on South side.
Listing is courtesy of eXp Realty
Sign in to your account to continue